Гидропривод пресса для вулканизации ВГ-2-170М2
- Назначение - формование и последующая вулканизация покрышек диагональной и радиальной конструкций в пресс-формах с экваториальным разъемом и в секторных пресс-формах двухфазного действия.
- Размер изготовляемых покрышек 13 – 17.5 дюймов.
- Независимая работа отдельных секций. Гидростанции работают надежно и не требуют закупок запасных частей. Всего было поставлено около 30-ти гидростанций.
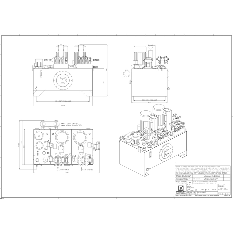
Гидростанция предназначена для управления исполнительными механизмами пресса для вулканизации. Применяемая гидравлическая аппаратура итальянского производства компании Duplomatic является унифицированной и взаимозаменяемой с современными аналогами зарубежных и отечественных производителей.
В качестве основного силового агрегата использована мотор-насосная группа с аксиально-поршневым насосом. Тонкость фильтрации сливного фильтра - 25 мкм, всасывающего фильтра - 90 мкм. Насосная станция состоит из следующих основных элементов: гидробак, мотор-насосная группа с предохранительным клапаном, блок направляющих и регулирующих клапанов.
Маслостанция представляет собой стальной гидробак объёмом, достаточным для обеспечения нормальной работы гидросистемы с данным расходом, с вертикально-расположенной мотор-насосной группой. Бак оснащён визуальным указателем уровня масла, воздушным фильтром (сапуном), отверстием с пробкой для слива рабочей жидкости, также на баке установлен сливной фильтр, предназначенный для очистки масла. Фильтр оснащен предохранительным (by-pass) клапаном, защищающим фильтр от поломки при загрязнении фильтрующего элемента и визуальным индикатором загрязнения. Крутящий момент от электродвигателя передается насосу через кулачковую муфту с демпфирующей проставкой, что снижает уровень шума при работе аппарата. Электродвигатель крепиться к насосу при помощи «колокола».
Контур кондиционирования и фильтрации рабочей жидкости реализован на базе воздушных теплообменников, установленных на сливной магистрали системы. Контроль температуры рабочей жидкости осуществляется посредством датчиков температуры.
Гидравлический агрегат производится в соответствии с общепризнанными техническими правилами. После сборки агрегат проходит обязательные испытания. Гарантийный период составляет 24 месяца с момента ввода в эксплуатацию, но не более 30 месяцев с даты отгрузки, при условии, что оборудование установлено и эксплуатируется в соответствии с требованиями Технико-эксплуатационной документации. Гарантия не распространяется на быстроизнашивающиеся элементы (фильтроэлементы, резиновые баллоны для гидроаккумулятора, РВД, манометры и т.д.).




