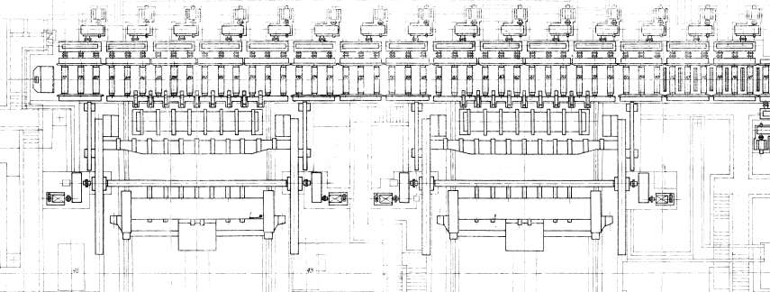
Гидростанция CTR-KV1019 для привода рольганговых весов
Гидростанция применяется в листопрокатном цехе ЛПЦ для привода рольганговых весов, которые взвешивают слябы перед их загрузкой в подогревательную печь.
Также подобная гидросистема может применяться в кислородно-конвертерном цехе ККЦ для привода рольганговых весов машины непрерывного литья заготовок МНЛЗ.




