Реконструкция гидравлической системы прессов ДО239 для изготовления диафрагм
Пресс ДО239 с усилием 800т предназначен для изготовления эластичных диафрагм.
Диафрагмы применяются на прессах-форматорах при вулканизации шин для легковых и грузовых автомобилей. Они предназначены для создания внутреннего каркаса при вулканизации заготовки под шину. Диафрагма заходит внутрь заготовки и заполняется паром или горячей водой под давлением. Снаружи заготовка охватывается горячей пресс-формой с требуемым рисунком протектора.
Проведена 1 реконструкция на заводе. На прессах была полностью заменена отечественная гидравлика на гидравлику "Duplomatic" (без ГЦ). Гидростанция CTR-KV1175 для пресса ДО239 для вулканизации диафрагм больших размеров.
Пресс ДО-239 с усилием 8 МН применяется для вулканизации диафрагм больших размеров.
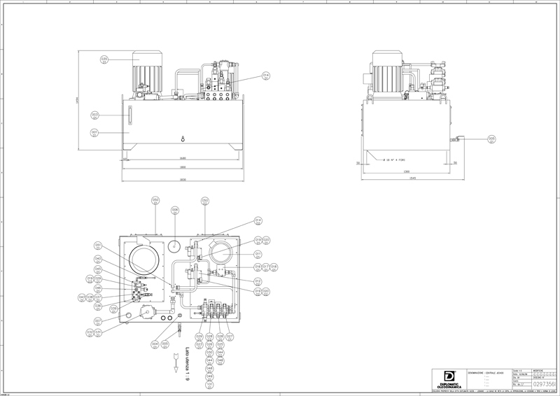
Гидростанция комплектуется гидроаппаратурой импортного производства модульного исполнения. Система управления работой гидростанции - на базе промышленного контроллера. Гидроаппаратура импортного производства фирмы Duplomatic. Все вновь устанавливаемые комплектующие соответствуют по расходным характеристикам принципиальной гидравлической схеме ДО239.
Гидростанция комплектуется насосными установками обеспечивающие необходимое давление прессования и управления исполнительными органами пресса. Питательный бак с необходимой аппаратурой контроля жидкости, управления работой гидростанции, запорной арматурой, системой очистки масла (тонкостью фильтрации 25 мкм) с установлением индикации по степени загрязненности и соответствующими блокировками. Конструкция бака соответствует расходным характеристикам пресса ДО239 (V=1050 л). На баке размещены показывающие манометры для визуального контроля текущего значения давления в рабочих цилиндрах пресса. На гидравлическом трубопроводе предусмотрены места для подключения манометров для проведения диагностики и наладки, воздухоспускные клапаны.
Промышленный контроллер фирмы «Siemens». Управление работой пресса реализуется с пульта, при помощи кнопок в двух режимах. Режим наладки (ручной) и полуавтоматический (рабочий) режим. Установка величины давлений в рабочем цилиндре (давление прессования) при помощи датчика давления. Выдержка времени вулканизации в полуавтоматическом режиме при помощи электронного реле времени.




