Изготовление гидравлических блоков и плит
Компания ПНЕВМАКС имеет возможность изготовления специальных гидравлических блоков на собственной производственной площадке, расположенной в г. Химки, которая занимает лидирующее место на российском рынке в сфере производства гидравлических агрегатов и маслостанций. Продукция нашего завода высоко ценится большинством производителей гидрофицированного оборудования в России и широко применяется в различных областях промышленности.
Предлагаемые гидроблоки подходят для картриджного и притычного монтажа гидравлической аппаратуры при реализации гидросистемы без применения трубопроводов. Особенно, данный вид монтажа гидросистемы характерен для гидравлических прессов, в гидросхеме которых применяются логические клапаны (вставки), предназначенные для работы с большими величинами расходов. Блоки выполняются также по техническому заданию заказчика.
Комплектация (монтаж) блока гидравлическими клапанами также осуществляется на собственной производственной площадке ООО «Пневмакс» в г.Химки. Это позволяет достичь наиболее выгодную стоимость гидравлической системы.
Для расчета стоимости блока нам необходимы только:
- гидравлическая принципиальная схема;
- спецификация устанавливаемых в (на) блок клапанов и распределителей;
- заполненный опросный лист.
Чертеж гидроблока не требуется!
После заключения договора Вам будут предоставлены чертеж и гидросхема блока на согласование. Изготовление блока начинается после утверждения технической документации со стороны Заказчика.
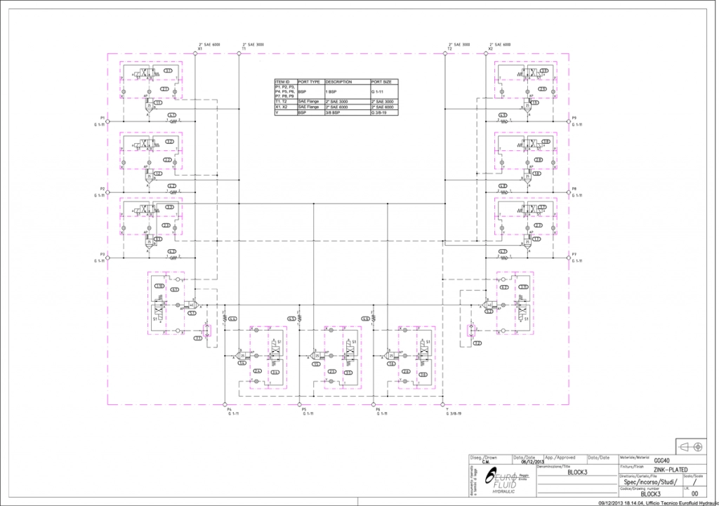
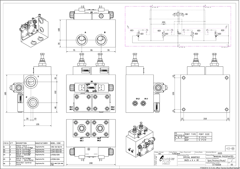
Схемы
Компания ПНЕВМАКС также специализируется на производстве монтажных плит, коллекторов, гидроблоков для гидравлических систем. В стандартный ассортимент выпускаемой продукции входят одиночные ответные присоединительные плиты, многоместные гидроблоки, плиты для модульного и секционного монтажа гидравлических клапанов стандарта CETOP. Компания также выпускает гидроблоки по чертежам или техническому заданию Заказчика.
Наша компания осуществляет изготовление гидравлических блоков на собственной производственной площадке, высококвалифицированный персонал и современное высокотехнологичное оборудование, позволяет изготавливать продукцию высочайшего качества.
Наши преимущества
- Входной метрологический контроль материала заготовок, позволяет исключить использование не качественного сырья при производстве блоков. Метрологический контроль на всех этапах производства, включая испытания под высоким давлением.
- Специализированное программное обеспечение для проектирования и 3D моделирования гарантирует выполнение всех операций с заданной точностью.
- Качественный инструмент и оснастка ведущих мировых производителей обеспечивают стабильную высокопроизводительную обработку широчайшей номенклатуры.
- Виброгалтовочная установка наряду с распылительно-моечной машиной осуществляют удаление заусенцев, а также производят очищение и обезжиривание поверхности детали после фрезерной обработки.
- Химическое фосфатирование изделий позволяет создать антикоррозионный слой, что является важнейшей составляющей при эксплуатации гидравлических блоков.
- Для расчета стоимости не требуется конструкторский чертеж гидроблока, достаточно наличие гидравлической схемы и спецификации аппаратуры.
- Выполнение единичных заказов в минимальные сроки, по разумной цене.
Материалы, применяемые при изготовлении гидравлических плит:
- Алюминий Д16Т (применяется в авиации).
- Сталь 35, 40, 40Х, 45.
- Сталь низколегированная 09Г2С.
- Нержавеющая сталь 12Х18Н10Т.
Обработка поверхности:
- Покраска
- Фосфатирование (UNI-ISO-9717).
- Оцинковка Fe//Zn8//Cn//T0 DIN 50979 (п о запросу).
- Оцинковка Fe//ZnNi8//An//T0 DIN 50979 (Никель) (по запросу).
Максимальное рабочее давление составляет 350 бар.




