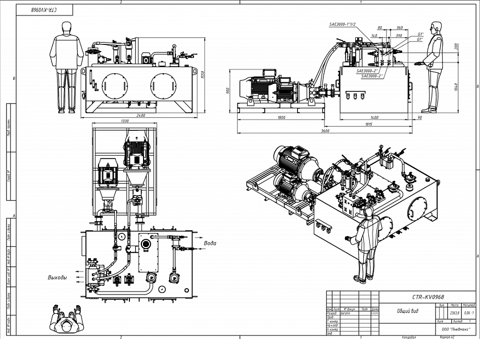
Гидростанция для молота М7352Б CTR-KV0968

Характеристики:

Объем бака, л 1500
Номинальное давление насоса, бар 350
Номинальный расход, л/мин 240+112
Давление настройки срабатывания предохранительного клапана, бар 160+160
Максимальная температура рабочей среды, С0 70
Рекомендуемая температура рабочей среды, С° 40-60
Рабочая среда минеральное масло
Допустимый диапазон вязкости рабочей жидкости, сСт 20-100
Рекомендуемая вязкость масла, сСт 32
Материалы основных деталей гидростанции чугун, сталь, алюминий
Электродвигатель, кВт 75кВт+37кВт
Масса, кг 2500
Молот бесшаботный высокоскоростной М7352Б предназначен для изготовления за один удар поковок сложных форм, близких по размерам к чистовым деталям, из труднодеформируемых металлов и сплавов, а также из обычных и легированных сталей.
  • Энергия удара 16 кДж;
  • Ход бабы 450 мм.

В ЭНИМСе в содружестве с компанией ООО ПНЕВМАКС спроектирован и изготовлен крупный гидроблок (составляющая данной гидростанции): давление 16 МПа; расход до 850 л/мин.

На блоке размещены три гидрораспределителя с электрогидравлическим управлением (условные проходы Dу = 16; 20 и 32 мм), обратные клапаны ввертного монтажа, модульный столбик с Dу = 6 мм, фланцевые присоединения для подключения насосов и гидродвигателей, а также резьбовое отверстие для подключения сливного фильтра.

Поскольку первоначальный вариант заготовки имел «неподъемную» массу более 200 кг, было принято решение разбить блок на две части, соединяемые шпильками и имеющие массы 95 и 62 кг, что дало возможность их обработки на универсальных станках.

3D-модель гидроблока позволила качественно произвести контроль трассировки внутренних каналов, практически полностью исключить наклонные отверстия и ликвидировать все «узкие места».

Подпишитесь на рассылку
И получайте первыми свежие новости